Exclusive villa with sea views in Benissa
03720 Benissa—Ref. N-378/515
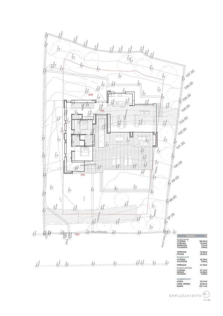
In a quiet cul-de-sac in Benissa, surrounded by nature and just a short distance from golf and beaches, this luxury villa is taking shape. A property that perfectly combines style, comfort and functionality, with everything you would expect from an exclusive home on the Northern Costa Blanca.
Layout
The villa is distributed over three levels, featuring thoughtful and elegant architecture:
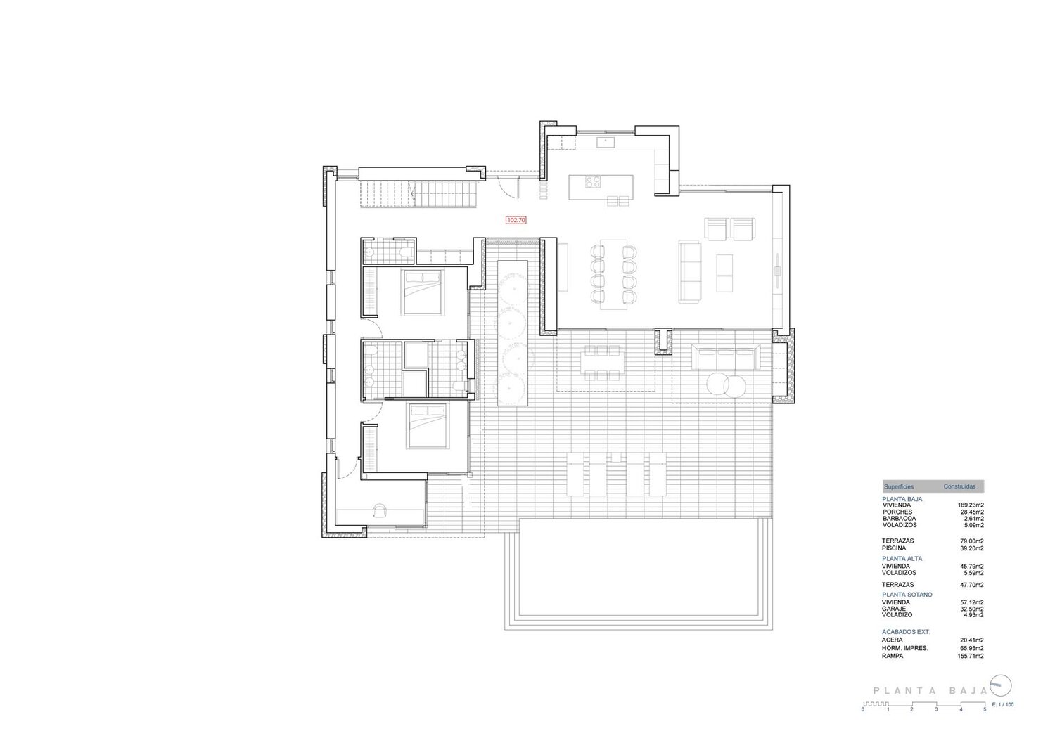
Entrance level: spacious garage, laundry room and technical room. Practical and efficiently designed.
Main level: generous open-plan living room, dining room and kitchen, all directly connected to the terrace and the pool. This level also includes two spacious bedrooms, each with an en-suite bathroom. Indoor and outdoor spaces flow together seamlessly here.
Upper level: the master suite with private bathroom and a large sun terrace. Enjoy sunrises and sunsets in complete tranquillity.
Outdoor living
The plot of 1,021m2 offers plenty of space to relax. You’ll enjoy a pool with sun terrace, a BBQ area and a beautifully landscaped garden. On the first floor there is also a large roof terrace to make the most of the Mediterranean climate and the distant sea views.
Location
The location makes this villa especially attractive:
In an exclusive and quiet neighbourhood, accessible only via a cul-de-sac.
750 metres from San Jaime Golf.
Only 2.2 km from the well-known Pepe La Sal supermarket.
Several beaches within 2.5 to 3.5 km.
Lifestyle
This villa is designed for those seeking peace, privacy and luxury in one of the most desirable areas of the Costa Blanca. Whether as a permanent residence or a second home, this property embodies the Mediterranean lifestyle where comfort, space and nature come together.
At a glance
Plot: 1,021m2
Built: 351m2
3 bedrooms, 3 bathrooms and guest toilet.
Price: 1,890,000 EUR
Under construction, completion by end of 2026.
Discover for yourself the perfect combination of luxury, tranquillity and Mediterranean lifestyle that this villa offers. Contact Adaleta for more information or to arrange a viewing.
Layout
The villa is distributed over three levels, featuring thoughtful and elegant architecture:
Entrance level: spacious garage, laundry room and technical room. Practical and efficiently designed.
Main level: generous open-plan living room, dining room and kitchen, all directly connected to the terrace and the pool. This level also includes two spacious bedrooms, each with an en-suite bathroom. Indoor and outdoor spaces flow together seamlessly here.
Upper level: the master suite with private bathroom and a large sun terrace. Enjoy sunrises and sunsets in complete tranquillity.
Outdoor living
The plot of 1,021m2 offers plenty of space to relax. You’ll enjoy a pool with sun terrace, a BBQ area and a beautifully landscaped garden. On the first floor there is also a large roof terrace to make the most of the Mediterranean climate and the distant sea views.
Location
The location makes this villa especially attractive:
In an exclusive and quiet neighbourhood, accessible only via a cul-de-sac.
750 metres from San Jaime Golf.
Only 2.2 km from the well-known Pepe La Sal supermarket.
Several beaches within 2.5 to 3.5 km.
Lifestyle
This villa is designed for those seeking peace, privacy and luxury in one of the most desirable areas of the Costa Blanca. Whether as a permanent residence or a second home, this property embodies the Mediterranean lifestyle where comfort, space and nature come together.
At a glance
Plot: 1,021m2
Built: 351m2
3 bedrooms, 3 bathrooms and guest toilet.
Price: 1,890,000 EUR
Under construction, completion by end of 2026.
Discover for yourself the perfect combination of luxury, tranquillity and Mediterranean lifestyle that this villa offers. Contact Adaleta for more information or to arrange a viewing.
| Property ID | N-378/515 |
|---|---|
| Asking price | € 1.890.000 |
| Type of house | Villa |
| Living area | 351 m² |
| Lot surface area | 1.021 m² |
| Year of construction | 2026 |
| Renovation year | - |
| Bedrooms | 3 |
| Bathrooms | - |
| Garages | - |
| Shower rooms | - |
| Cadastral Income | - |
|---|---|
| EPC | - |
| Unique code | |
| Flood area | Niet medegedeeld |
| Planning permit | - |
| Parcelling permit | - |
| Planning permit | Residential area |
| Pre-emptive right | - |
| Originating Summons | - |
| Judicial decision | - |
Adaleta Avenida de Ibiza 16 R5, Local , 03189 Orihuela Costa
- Telephone:+34.865.94.20.48
- EMAIL:info@adaletaspain.com
- Website:www.adaleta.be
Broker

















