Zeer ruime Luxe villa gelegen op eerste lijn van het meer van Santa Rosalia Resort
30710 Los Alcázares—Ref. Chic 1303
Exclusieve off-plan gelijkvloerse villa op eerste lijn aan het meer – Santa Rosalía Lake & Life Resort
Deze uitzonderlijke gelijkvloerse villa bevindt zich op een absolute toplocatie, op eerste lijn aan het meer van Santa Rosalía, en combineert hedendaagse architectuur met ruimte, comfort en luxe.
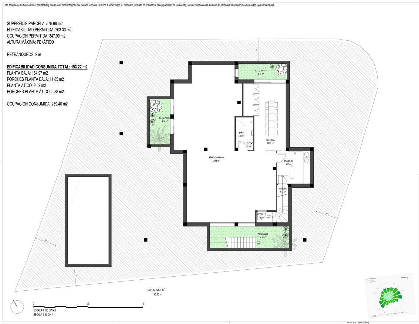
De woning beschikt over een totale bebouwde oppervlakte van 335,91 m².
De begane grond van 171,61 m² omvat:
3 ruime slaapkamers
3 stijlvolle badkamers
Een lichte en open leefruimte met salon en eetgedeelte
Volledig ingerichte keuken
Apart kantoor
Fietsenstalling
Zomerkeuken met directe toegang tot het terras en het privézwembad
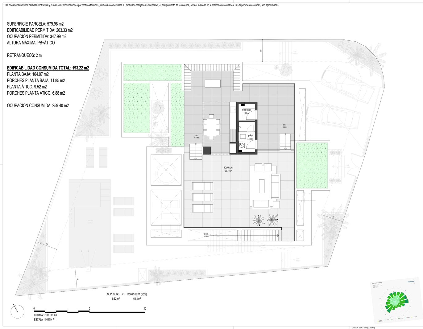
Bovenaan bevindt zich een indrukwekkend solarium van maar liefst 125 m², uitgerust met een zomerkeuken, toilet en berging. Van hieruit geniet u van maximale privacy en panoramische zichten – ideaal om het hele jaar door te ontspannen of gasten te ontvangen.
De kelderverdieping van 164,30 m² biedt een enorme meerwaarde en kan volledig worden ingericht als bewoonbare ruimte (extra slaapkamers, fitness, home cinema, gastenverblijf…).
Deze verdieping is volledig betegeld en gepleisterd en beschikt over:
3 Engelse patio’s met een totale oppervlakte van 31,87 m² voor natuurlijk licht
Opslagruimte
Wasruimte
Technische ruimte
Een unieke villa op een uitzonderlijke locatie, perfect als luxueuze hoofdverblijfplaats, exclusieve vakantiewoning of hoogwaardige investering op een van de meest prestigieuze resorts van de Costa Cálida.
Deze uitzonderlijke gelijkvloerse villa bevindt zich op een absolute toplocatie, op eerste lijn aan het meer van Santa Rosalía, en combineert hedendaagse architectuur met ruimte, comfort en luxe.
De woning beschikt over een totale bebouwde oppervlakte van 335,91 m².
De begane grond van 171,61 m² omvat:
3 ruime slaapkamers
3 stijlvolle badkamers
Een lichte en open leefruimte met salon en eetgedeelte
Volledig ingerichte keuken
Apart kantoor
Fietsenstalling
Zomerkeuken met directe toegang tot het terras en het privézwembad
Bovenaan bevindt zich een indrukwekkend solarium van maar liefst 125 m², uitgerust met een zomerkeuken, toilet en berging. Van hieruit geniet u van maximale privacy en panoramische zichten – ideaal om het hele jaar door te ontspannen of gasten te ontvangen.
De kelderverdieping van 164,30 m² biedt een enorme meerwaarde en kan volledig worden ingericht als bewoonbare ruimte (extra slaapkamers, fitness, home cinema, gastenverblijf…).
Deze verdieping is volledig betegeld en gepleisterd en beschikt over:
3 Engelse patio’s met een totale oppervlakte van 31,87 m² voor natuurlijk licht
Opslagruimte
Wasruimte
Technische ruimte
Een unieke villa op een uitzonderlijke locatie, perfect als luxueuze hoofdverblijfplaats, exclusieve vakantiewoning of hoogwaardige investering op een van de meest prestigieuze resorts van de Costa Cálida.
| Property ID | Chic 1303 |
|---|---|
| Asking price | € 1.300.000 |
| Type of house | Villa |
| Living area | 336 m² |
| Lot surface area | 600 m² |
| Year of construction | 2026 |
| Renovation year | - |
| Bedrooms | 3 |
| Bathrooms | 4 |
| Garages | - |
| Shower rooms | 4 |
| Cadastral Income | - |
|---|---|
| EPC | - |
| Unique code | |
| Flood area | Niet gelegen in gevoelig gebied |
| Planning permit | - |
| Parcelling permit | - |
| Planning permit | Residential park |
| Pre-emptive right | - |
| Originating Summons | - |
| Judicial decision | - |
Premium broker
Chic Estates Plaza Miguel de Cervantes 13 AB, 30710 Los Alcázares
- Telephone:+34.684.14.56.69
- EMAIL:immo@chic-estates.com
- Website:chic-estates.com/











































