Charmante luxe villas in Benissa, Costa Blanca Noord
03720 Benissa—Ref. N-354/045
Modern comfort op één niveau – op slechts 1 km van het strand
Serenity Villas is een intiem woonproject met vier exclusieve nieuwbouwvilla’s in het geliefde La Fustera, een rustige wijk tussen Calpe en Moraira aan de Costa Blanca. Slechts één kilometer verwijderd van het strand, combineert dit project de charme van een mediterrane locatie met een strak, eigentijds ontwerp.
Ibiza-sfeer en mediterrane elegantie
Ontworpen door architect Pepe Giner, ademen deze villa’s een unieke stijl die de relaxte sfeer van Ibiza samenbrengt met de warme uitstraling van natuurlijke materialen zoals hout, natuursteen en witte gevels. De woningen zijn volledig gelijkvloers en combineren binnen- en buitenleven op een natuurlijke manier, met veel lichtinval en open zichtlijnen.
Kenmerken van deze designvilla’s in Benissa:
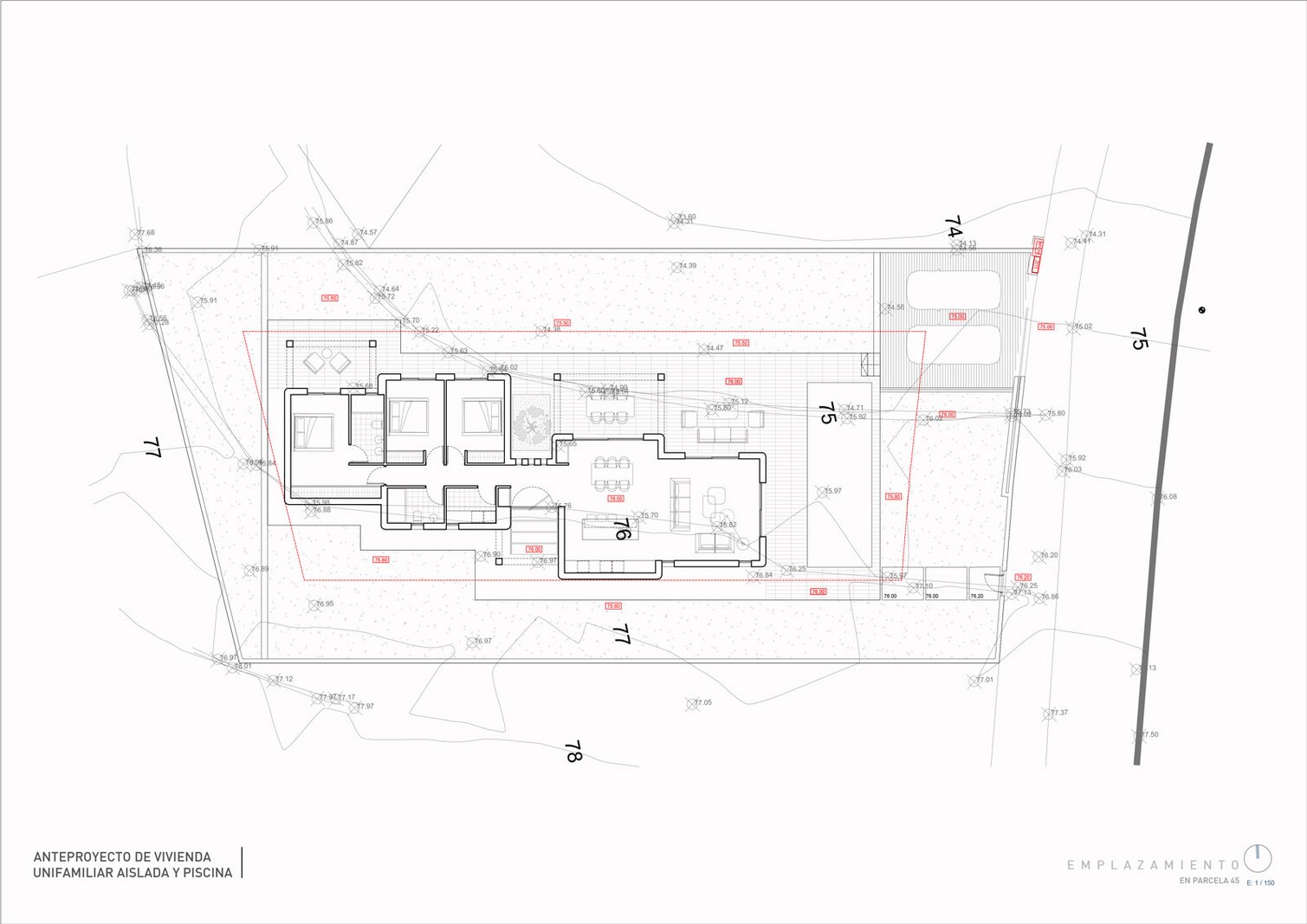
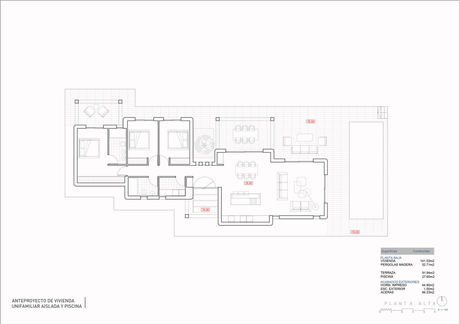
– Alle leefruimtes op één verdieping, met een doordachte indeling van 139 m².
– Grote terrasoppervlakken van 68 m² met pergola’s en schaduwplekken.
– Privézwembad van 29 m² voor ultieme ontspanning onder de zon.
– Open leefruimte met moderne keuken en zicht op de tuin.
– Energiezuinige constructie met hoogwaardige materialen.
– Rustige ligging midden in het groen, maar toch dichtbij voorzieningen en kustplaatsen.
Een stijlvolle thuis in Benissa
Of je nu op zoek bent naar een vaste woonplek, een tweede verblijf of een investering aan de Costa Blanca – deze villa’s bieden een combinatie van design, rust en ligging die zelden te vinden is. Geniet van het buitenleven, het zachte klimaat en de rustgevende sfeer in een architecturaal pareltje dat gebouwd is om jarenlang van te genieten.
Serenity Villas staat voor een zorgeloze levensstijl aan de Middellandse Zee – elegant, modern en in harmonie met de omgeving.
Serenity Villas is een intiem woonproject met vier exclusieve nieuwbouwvilla’s in het geliefde La Fustera, een rustige wijk tussen Calpe en Moraira aan de Costa Blanca. Slechts één kilometer verwijderd van het strand, combineert dit project de charme van een mediterrane locatie met een strak, eigentijds ontwerp.
Ibiza-sfeer en mediterrane elegantie
Ontworpen door architect Pepe Giner, ademen deze villa’s een unieke stijl die de relaxte sfeer van Ibiza samenbrengt met de warme uitstraling van natuurlijke materialen zoals hout, natuursteen en witte gevels. De woningen zijn volledig gelijkvloers en combineren binnen- en buitenleven op een natuurlijke manier, met veel lichtinval en open zichtlijnen.
Kenmerken van deze designvilla’s in Benissa:
– Alle leefruimtes op één verdieping, met een doordachte indeling van 139 m².
– Grote terrasoppervlakken van 68 m² met pergola’s en schaduwplekken.
– Privézwembad van 29 m² voor ultieme ontspanning onder de zon.
– Open leefruimte met moderne keuken en zicht op de tuin.
– Energiezuinige constructie met hoogwaardige materialen.
– Rustige ligging midden in het groen, maar toch dichtbij voorzieningen en kustplaatsen.
Een stijlvolle thuis in Benissa
Of je nu op zoek bent naar een vaste woonplek, een tweede verblijf of een investering aan de Costa Blanca – deze villa’s bieden een combinatie van design, rust en ligging die zelden te vinden is. Geniet van het buitenleven, het zachte klimaat en de rustgevende sfeer in een architecturaal pareltje dat gebouwd is om jarenlang van te genieten.
Serenity Villas staat voor een zorgeloze levensstijl aan de Middellandse Zee – elegant, modern en in harmonie met de omgeving.
| Vastgoed ID | N-354/045 |
|---|---|
| Vraagprijs | € 890.000 |
| Woningtype | Villa |
| Woonopp. | 140 m² |
| Perceelopp. | 800 m² |
| Bouwjaar | 2026 |
| Renovatiejaar | - |
| Slaapkamers | 3 |
| Badkamers | - |
| Garages | - |
| Douchekamers | - |
| Kadastraal Inkomen | - |
|---|---|
| EPC | - |
| Unieke code | |
| Overstromingsgebied | Niet medegedeeld |
| Stedenbouwkundige vergunning | - |
| Verkavelingsvergunning | - |
| Stedenbouwkundige bestemming | Woongebied |
| Voorkooprecht | - |
| Dagvaarding | - |
| Rechterlijke beslissing | - |
Adaleta Avenida de Ibiza 16 R5, Local , 03189 Orihuela Costa
- Telefoon:+34.865.94.20.48
- Email:info@adaletaspain.com
- Website:www.adaleta.be
Makelaar














